Garten Pool Korfu
1980000 Ft
+ Versandkosten je nach Lieferadresse Details hier
Korfu Gartenpool 376 x 710 cm; 20,4 m3 Wasseraufbereitung mit Sandfilteranlage. Bau von oberirdischen Schwimmbädern
Hervorragende Qualität, Langlebigkeit
- Fachberatung und Kundenservice
- Landesweite Lieferung
- Kostenlose Abholung im Lager
Garten Pool Korfu
Kerti-Becken – Korfu
Unser Gartenpool besteht aus den folgenden Elementen:
- Oberirdischer, schnell aufbaubarer oberirdischer Pool mit Balkenrahmen
- 376 x 714 cm einschließlich Maschinengehäuse
- Weka Außenpool-Installation: Klicken Sie hier für ein Video eines fertigen Pools und sehen Sie sich eines unserer 100 Projekte an
- Stabile Konstruktion, Rahmenkonstruktion aus 45 mm dicken Balken mit gesättigter Nut/Feld-Verbindung
- Alle Hölzer aus gehobeltem Nadelholz, gesättigt nach DIN 68800
- Wandkonstruktion 45 mm starker imprägnierter Balkenrahmen mit massiven Eckverbindungen
- Korfu Garten Pool mit Balkenrahmen Volumen 20,4 m3
- Tiefe des Außenbeckens 120 cm, Betriebswasserstand 110 cm
- Klicken Sie hier, um zu sehen, wie man einen Außenpool mit einem Holzrahmen baut
Technische Grundausstattung:
- Abschäumer / Abschäumerschlauchset und Injektoröse
- Wir legen eine Textilmatte als Folienunterlage
- 0,6 mm dicke Poolfolie, blaue Farbe, vorgefertigte Größe
- Inklusive Technikraum, Holztreppe, Geländer
- “MAXI” Sandfilteranlage, geliefert mit Pumpe
- 5 Jahre Werksgarantie auf Holz, 2 Jahre auf Folie (Haltbarkeit zwischen 8-10 Jahren)
- Geprüftes, zertifiziertes deutsches Produkt, deutsche Technologie
- Der Holzrahmen ist aus konserviertem/gesättigtem Holz gefertigt
Häufig gestellte Fragen zur Installation unserer Pools finden Sie hier.
Wir empfehlen unsere Gartenpools mit Rahmen für diejenigen, die nicht alle 1-2 Jahre einen neuen Kunststoffpool kaufen möchten. Dank des soliden, gesättigten Balkenrahmens bieten wir eine 5-Jahres-Garantie auf das Holz unserer Pools.
Eine Übersichtstabelle über die Montage vor Ort, die Preise für die Inbetriebnahme und eine Vielzahl von Zusatzausstattungen finden Sie unter dem Reiter “Technische Zeichnungen”.
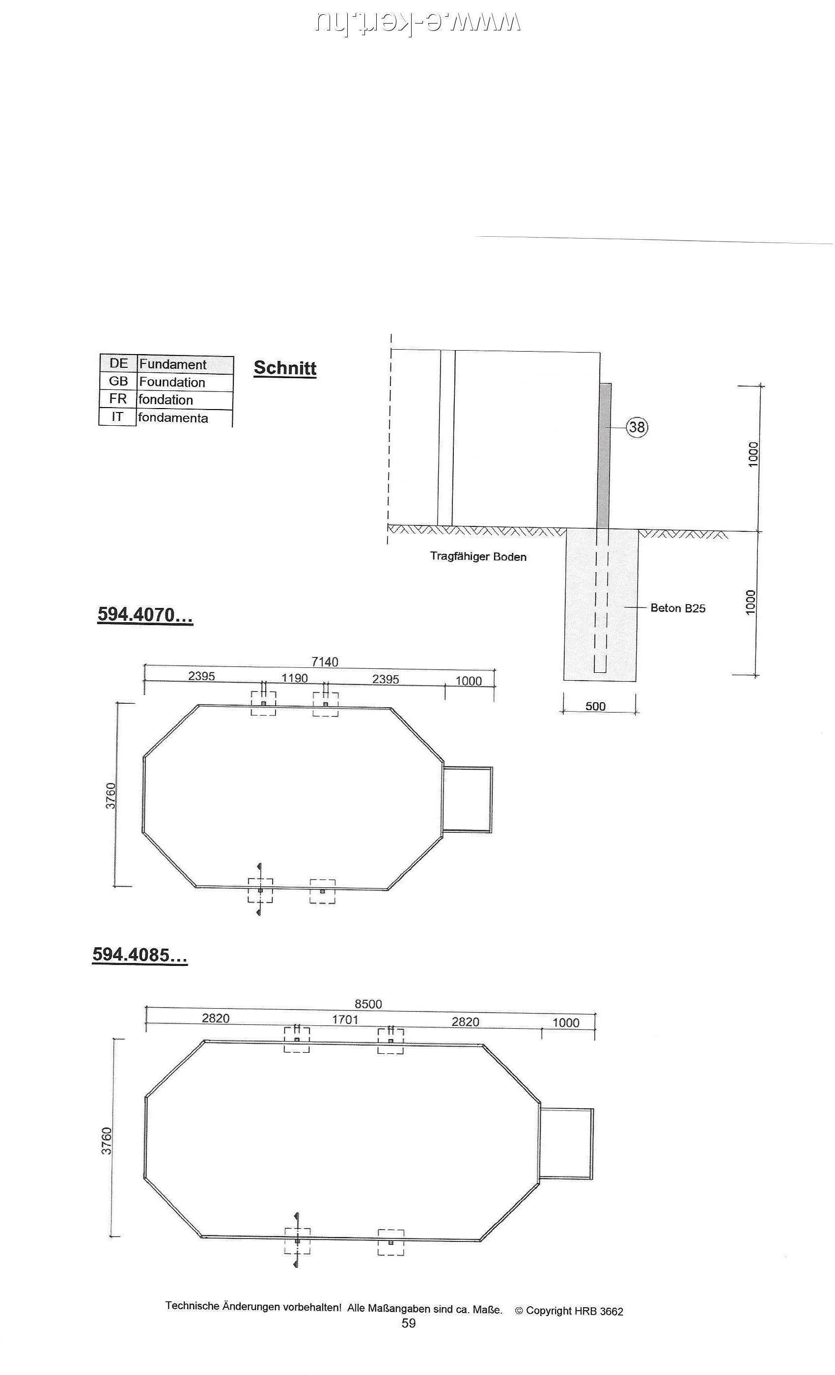
Es ist wichtig, dass unter dem Pool eine ausreichend tragfähige Oberfläche entsteht. Wir empfehlen 10 cm gestampftes Kiesbett + 10-15 cm verstärkte glatte Betonplatte, die wir je nach Standort auch für Sie bauen können.
Sie können auch professionelles porenversiegelndes Holzöl für Ihren Pool in jeder Farbe bestellen: Farben, Zubehör
Außenterrasse, Terrassenbelag: Terrassenbau aus Holz
Optionales Zubehör finden Sie hier: Pool-Zubehör
Eine ausgezeichnete Wahl für diejenigen, die nicht eine Größenordnung mehr Geld für einen Gartenpool ausgeben möchten, aber der aufblasbaren Pools überdrüssig sind – für Familien mit kleinen Kindern (Hunde und Katzen können nicht in den Pool fallen) – natürlicher, dem Garten angepasster Rahmen aus Massivholzbalken – wir liefern Ihnen einen einbaufertigen, gebrauchsfertigen “Privatstrand” in 2 Arbeitstagen.
Sie müssen Ihren Garten nicht zerstören, um zu bauen. Vorteile von oberirdischen Pools:
- Einfach zu bauen, auch bei hohem Grundwasserstand
- Um eine Größenordnung billiger zu bauen als ein eingelassener Pool
- Für Familien mit kleinen Kindern ist die Sicherheit wichtig. Das Kind kann nicht in den Pool fallen!
- Wenn es ihnen nach ein paar Jahren langweilig wird oder sie wegziehen, kann es abgebaut und an einem anderen Ort wieder aufgebaut werden.
- Das Blockhaus aus Naturholz sieht in jedem Garten gut aus und fügt sich harmonisch in die Umgebung ein
- Garten-Schwimmbadkonstruktion aus geprüfter, zertifizierter Konstruktion. Deutsche Qualität
- Wählen Sie aus unseren vorgefertigten Außenpools mit Holzrahmen und einer Reihe von Annehmlichkeiten! Schaffen Sie einen Privatstrand in Ihrem Garten, damit Sie an heißen Sommertagen jederzeit die Vorzüge des Schwimmens genießen können! Um das Erlebnis eines Strandes bei Ihnen zu Hause zu schaffen, sollten Sie jedoch frühzeitig mit der Planung beginnen und Ihre Möglichkeiten abwägen.
Die Installation dieser Art von Außenpools ist fast ein Kinderspiel, da sie keine größeren Erdarbeiten erfordert. Abgesehen davon ist es ebenso wichtig, den Boden richtig vorzubereiten. Es sollte eine Fläche zur Verfügung stehen, auf der die Struktur sicher aufgestellt werden kann. Einer der wichtigsten Punkte dabei ist, dass die Fundamente professionell ausgeführt werden. Vor allem ist es wichtig, die richtigen Schichten und die richtige Dicke zu verwenden, und es ist ratsam, professionelle Hilfe in Anspruch zu nehmen.
Bei Gartenpools mit Holzrahmen ist es wichtig, dass Sie immer mit einer ebenen Fläche beginnen. Eine ebene Oberfläche stellt sicher, dass sie über viele Jahre hinweg ohne Störungen betrieben werden können.
Wie lange Sie für den Bau und die Installation des Pools benötigen, hängt davon ab, welches weitere Zubehör Sie Ihrem Pool hinzufügen möchten. Deren Installation erfordert jedoch ebenfalls nur ein paar Tage zusätzliche Arbeit. Es lohnt sich jedoch, dies bei der Planung zu berücksichtigen.
Es mag für viele Menschen seltsam und überraschend erscheinen, aber es lohnt sich, bereits im Winter mit der Planung und Vorbereitung des Grundstücks für Ihren zukünftigen Pool zu beginnen. So stellen Sie sicher, dass Sie, wenn die warmen Sommertage kommen, die Vorzüge eines Privatstrandes genießen können und kurzfristig darauf vorbereitet sind.
Zusätzliche Informationen
| Gewicht | 947 kg |
|---|---|
| Größe | 378 × 714 × 120 cm |
| Installationsbedingungen | Für unsere Pools wird eine 10 cm dicke Stahlbetonplatte als Untergrund empfohlen. Wenn Sie eine Poolinstallation bestellen, empfehlen wir Ihnen, mindestens 5-6 Wochen im Voraus zu planen! |























MA800-0286-12-24 Villanyszerelés Biztonság









Rezensionen
Es gibt noch keine Rezensionen.